Front elevation and plan of kitchen
Description
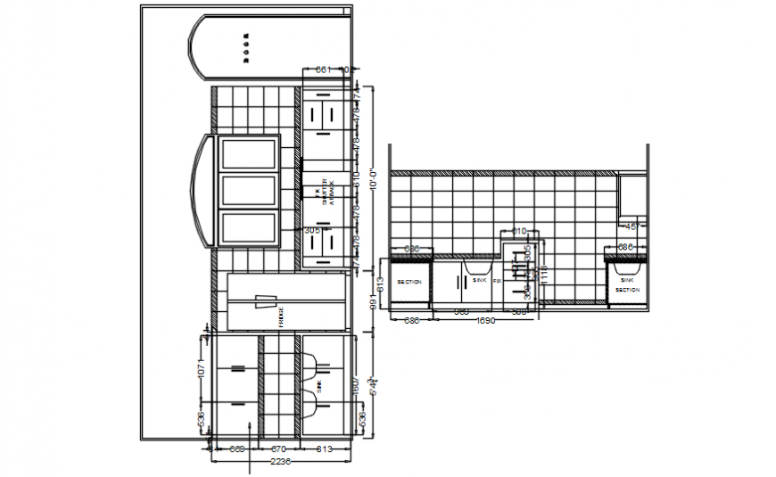
here there is wash basin detail, platform detail, gas-stove detail, drawer and cabinet detail, fridge and faucet and tap detail, wooden furniture detail with tiles detailing
Uploaded by:
Eiz
Luna
here there is wash basin detail, platform detail, gas-stove detail, drawer and cabinet detail, fridge and faucet and tap detail, wooden furniture detail with tiles detailing
Uploaded by:
Luna