Wall mart store architecture layout plan cad drawing details dwg file
Description
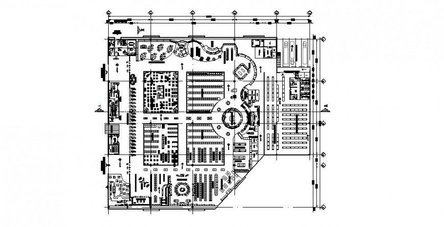
Wall mart store architecture layout plan cad drawing details that includes a detailed view of market plant food plant supplies plant, meat and seafood, lift and elevator details with food department, vegetable departments, clothing departments with grocery store with sanitary facilities, billing counter, dairy products department, stores and shops details with masonry wall blocks and much more of market project.
Uploaded by:
Eiz
Luna

