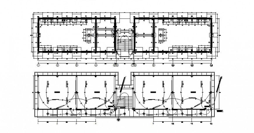
School floor foundation plan and electrical installation details dwg file
Description
School floor foundation plan and electrical installation details here you cad found a free auto-cad file with the foundation with side typical shoe & typical central shoe with columns and foundations shoes, computation and schedule of loads with general notes and specifications, panel board details, riser diagram with legends and electric equipment details, cable details and dimensions details and much more of school details.
Uploaded by:
Eiz
Luna

