Second and third floor layout plan drawing details of local hotel building dwg file
Description
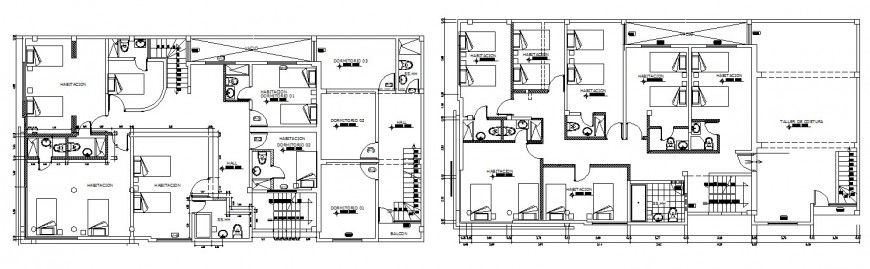
Second and third floor layout plan drawing details of local hotel building here you can download free drawing of hotel building with parking area with outdoor garden, reception area with waiting lounge, dining area with banquet hall and kitchen with staff room and sanitary facilities, furniture details and interior details, laundry department, spa and gym details, backyard garden and service area, bedrooms like honeymoon suits and double bedrooms etc, cleaning departments, cafeteria with bar and terrace, elevators and much more of hotel project.
Uploaded by:
Eiz
Luna

