Sanitary toilet and kitchen plan drawings autocad file
Description
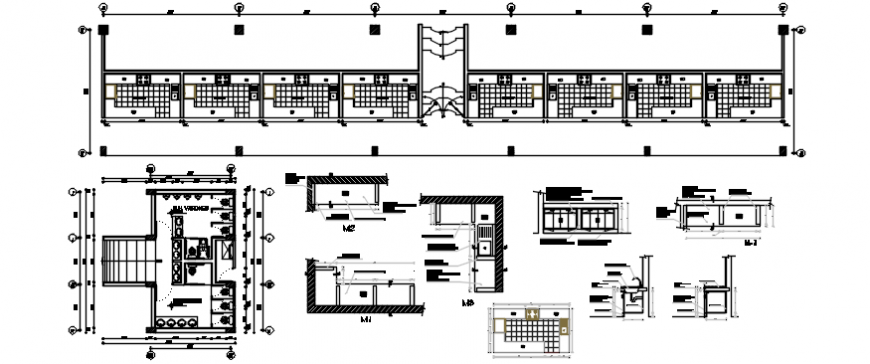
Sanitary toilet and kitchen plan drawings autocad file that shows sanitary toilet area details with kitchen area plan and kitchen furniture and automation blocks details along with dimension and sanitary blocks details of washbasin watercloset details.
File Type:
DWG
File Size:
1.1 MB
Category::
Construction
Sub Category::
Kitchen And Remodeling Details
type:
Gold
Uploaded by:
Eiz
Luna
