Details of housing blocks CAD drawings 2d view autocad software file
Description
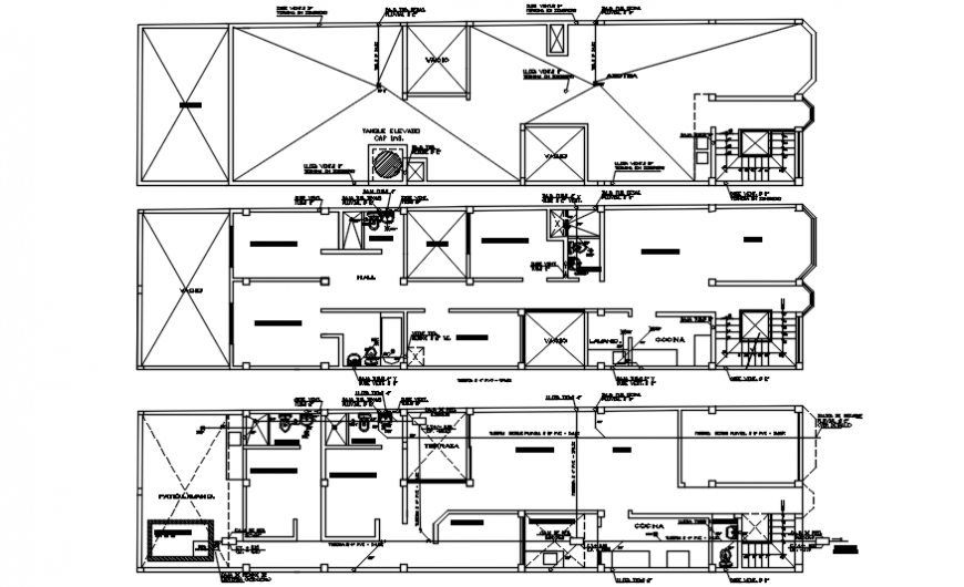
Details of housing blocks CAD drawings 2d view autocad software file that shows house floor plan details with furniture layout details and floor level details. Dimension hidden line details with room details of drawings room bedroom kitchen dining area with sanitary toilet and bathroom area details. Section line and staircase details also included in drawings.
Uploaded by:
Eiz
Luna

