Drawings 2d view RCC structural blocks of staircase and footing dwg file
Description
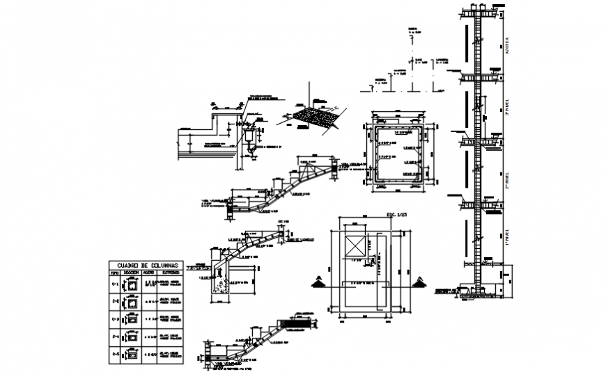
Drawings 2d view RCC structural blocks of staircase and footing dwg file that shows reinforcement details in tension and compression zone with main and distribution hook up bent up bars details along with cut out details and dimension details. Concrete masonry details and other structural blocks detail also shown in drawings.
File Type:
DWG
File Size:
1.6 MB
Category::
Construction
Sub Category::
Reinforced Cement Concrete Details
type:
Gold
Uploaded by:
Eiz
Luna

