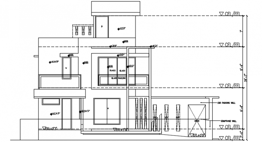
Drawings details of housing blocks elevation dwg autocad file
Description
Drawings details of housing blocks elevation dwg autocad file that includes building front elevation detail long with floor level details and compound boundary wall details and entrance gate details. Door window blocks details and other details also shown in drawings.
Uploaded by:
Eiz
Luna

