2d CAD drawings details of house blocks layout autocad software file
Description
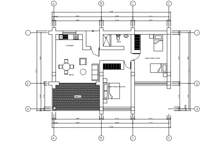
2d CAD drawings details of house blocks layout autocad software file that includes work plan drawings details of house with furniture blocks detail and room details of kitchen drawings room details bedroom and sanitary toilet and bathroom details are aslo shown in drawings. Door window blocks details nd other details also shown in drawings.
Uploaded by:
Eiz
Luna

