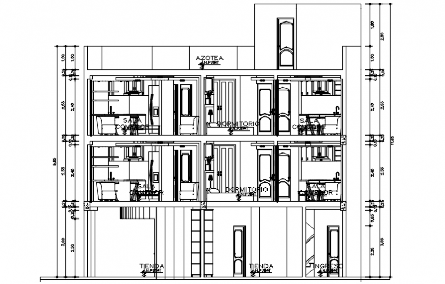
2d CAD drawings details of residential bungalow section dwg file
Description
2d CAD drawings details of residential bungalow section dwg file that includes floor level details along with wall flooring details and furniture blocks details. Staircase details and leveling details are also shown in drawings.
Uploaded by:
Eiz
Luna

