2d CAD drawing details of house layout plan autocad software file
Description
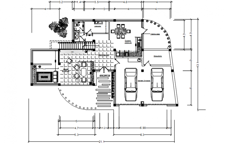
2d CAD drawing details of house layout plan autocad software file that includes work plan drawings details of house with furniture blocks detail and room details of kitchen drawings room details bedroom and sanitary toilet and bathroom details are aslo shown in drawings. Door window blocks details and other details also shown in drawings.
Uploaded by:
Eiz
Luna

