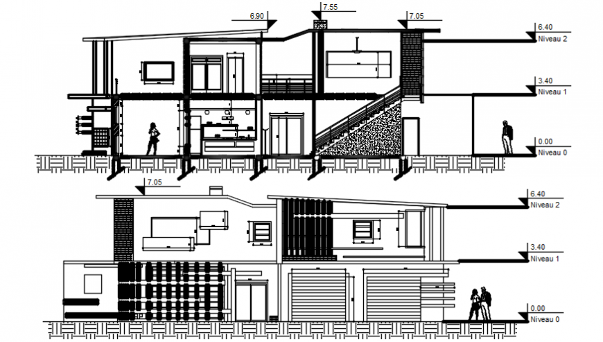
Elevation and sectional details of apartment 2d view autocad file
Description
Elevation and sectional details of apartment 2d view autocad file that includes house elevation and sectional details along with floor level details and door window block details with leveling details and compound boundary wall and entrance gate details.
Uploaded by:
Eiz
Luna

