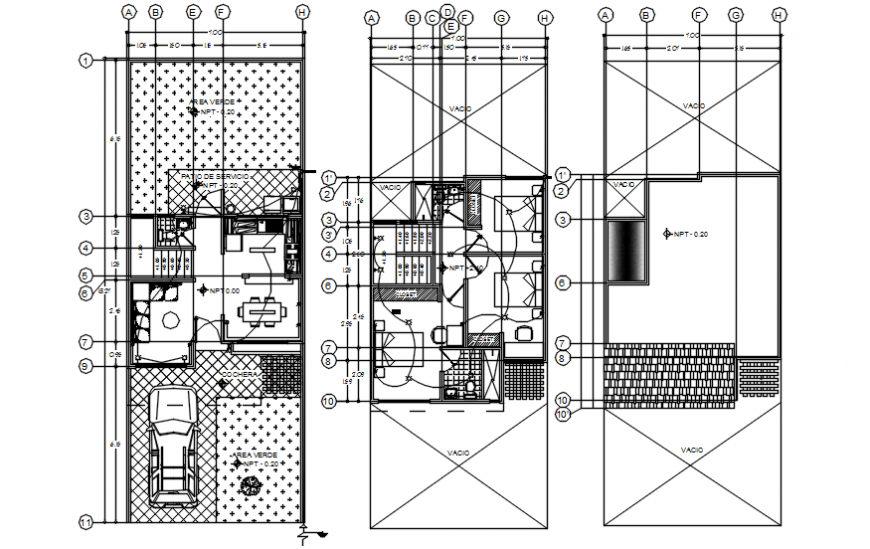
2d CAD drawings of house layout plan with electrical installation dwg file
Description
2d CAD drawings of house layout plan with electrical installation dwg file that includes work plan drawings details of house with furniture blocks detail and room details of kitchen drawings room details bedroom and sanitary toilet and bathroom details are aslo shown in drawings. electrical installation details and other details of the house also shown in drawings.
Uploaded by:
Eiz
Luna
