Top view of floor levels in bungalow
Description
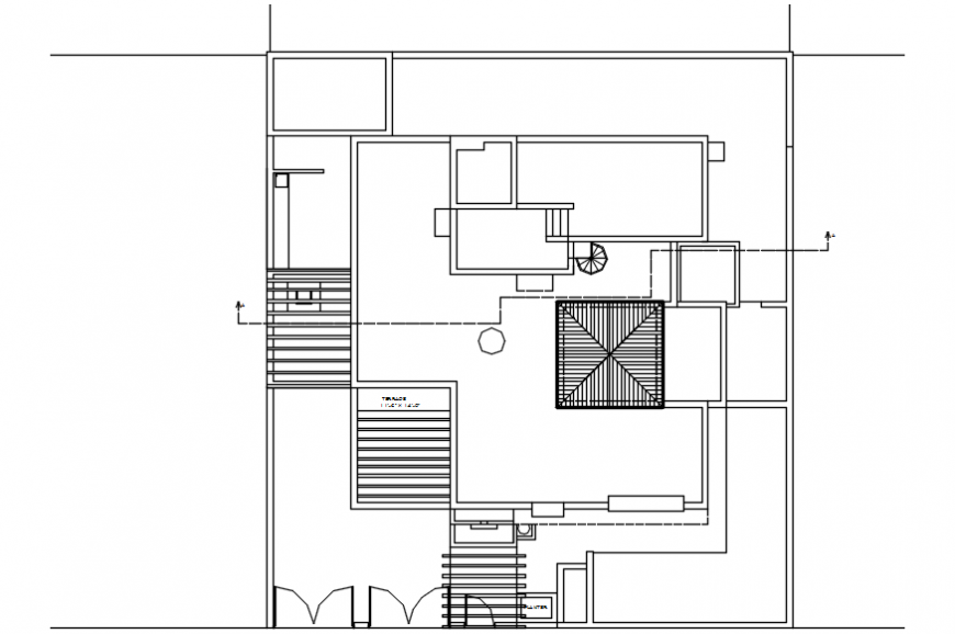
Top view of floor levels in bungalow. here there is top view terrace layout plan details with grill and staircase plan in auto cad format
Uploaded by:
Eiz
Luna
Top view of floor levels in bungalow. here there is top view terrace layout plan details with grill and staircase plan in auto cad format
Uploaded by:
Luna