Housing apartment plan elevation dwg autocad file
Description
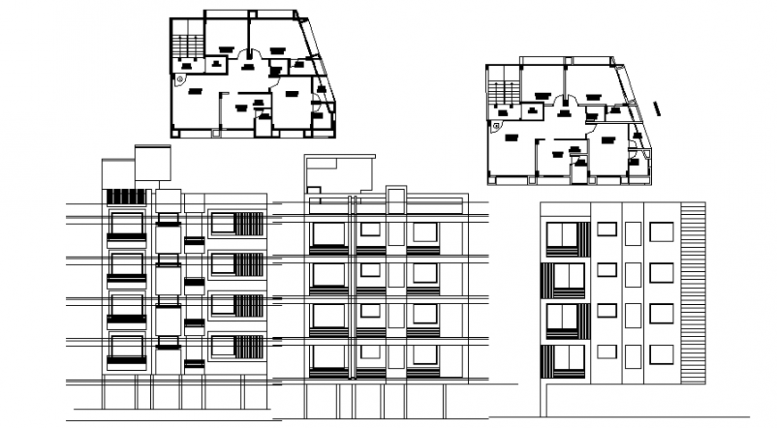
Housing apartment plan elevation dwg autocad file that shows work plan of nuilding with room diemnsion details and house difefrent side elevation along with staircase detais. Balcony details along with room details of drawings room bedroom kiitchen dining area and sanitary toilet bathroom details also shown in drawings.
Uploaded by:
Eiz
Luna

