2d CAD drawings of house layout plan and elevation dwg file
Description
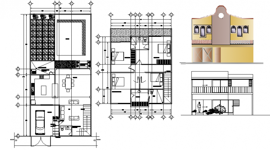
2d CAD drawings of house layout plan and elevation dwg file that shows work plan of nuilding with room diemnsion details and house difefrent side elevation along with staircase detais. Balcony details along with room details of drawings room bedroom kiitchen dining area and sanitary toilet bathroom details also shown in drawings.
Uploaded by:
Eiz
Luna

