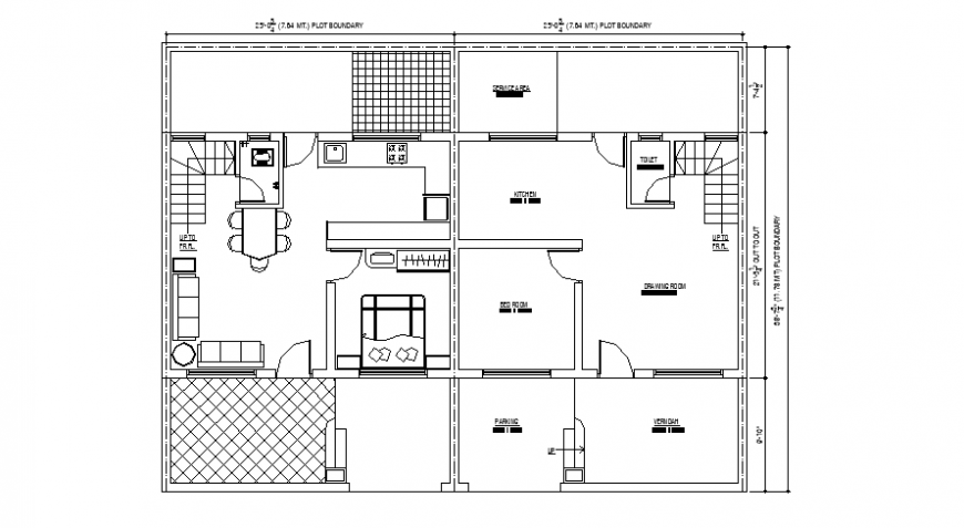
2d layout plan of house CAD drawings details in autocad software
Description
2d layout plan of house CAD drawings details in autocad software that shows housework plan drawings details with room dimension details and staircase floor level details. Room details include details of bedroom drawings room kitchen and dining area with sanitary toilet and bathroom details.
Uploaded by:
Eiz
Luna

