2d CAD drawings of restaurant building autocad file
Description
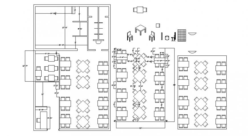
2d CAD drawings of restaurant building autocad file that shows building floor plan detail with dimension details and furniture layout details of table and chair along with various other details of the building also shown in drawings.
Uploaded by:
Eiz
Luna
