Housing apartment drawings 2d view layout plan and elevation dwg file
Description
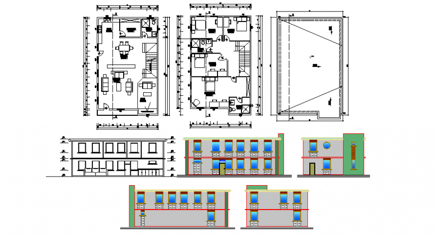
Housing apartment drawings 2d view layout plan and elevation dwg file that shows a work plan of building with room dimension details and house different side elevation along with staircase details. Balcony details along with room details of drawings room bedroom kitchen dining area and sanitary toilet bathroom details also shown in drawings.
Uploaded by:
Eiz
Luna

