2d CAD drawings details of housing apartment plan elevation and section dwg file
Description
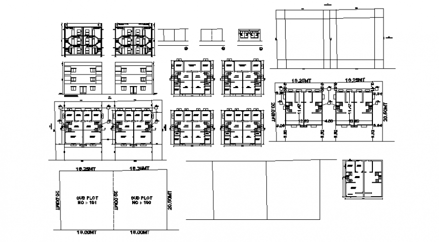
2d CAD drawings details of housing apartment plan elevation and section dwg file that shows work plan of building with room dimension details and house different side elevation along with staircase details. Balcony details along with room details of drawings room bedroom kitchen dining area and sanitary toilet bathroom details also shown in drawings.
Uploaded by:
Eiz
Luna
