Drawings details of house layout plan autocad software file
Description
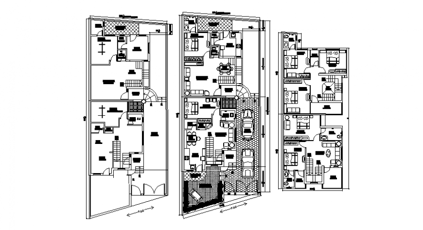
Drawings details of house layout plan autocad software file that includes housing apartmnet drawings plan details along with furniture layout detials in building along with floor level details and satircase door indow blocjs detaisl. Room details included detaisl of drawings room bedroom kitchen and dining area with various other details also included in drawings.
Uploaded by:
Eiz
Luna

