Plan and elevation of house apartment layout autocad file
Description
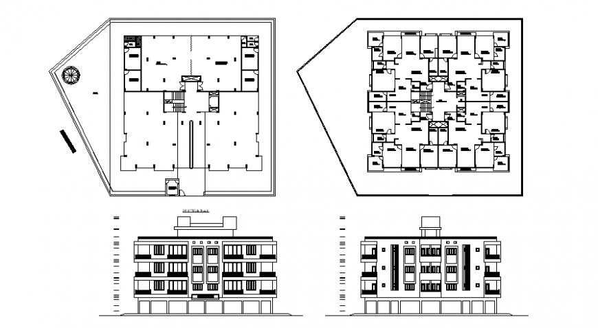
Plan and elevation of house apartment layout autocad file that shows work plan of apartment with room dimension details and door window blocks along with terrace plan details and building different sides of elevation like front elevation and rear elevation are shown in drawings.
Uploaded by:
Eiz
Luna

