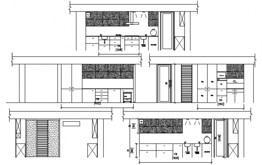
Drawing elevation of kitchen 2d view autocad software file
Description
Drawing elevation of kitchen 2d view autocad software file that shows kitchen area elevation details along with furniture and automation units in the kitchen like shelves and racks platform details sink and gas-stive details.
Uploaded by:
Eiz
Luna

