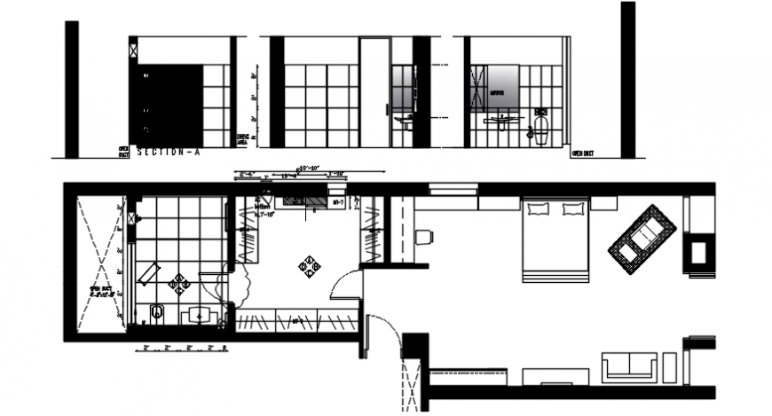
Bedroom plan and elevation drawings 2d view autocad software file
Description
Bedroom plan and elevation drawings 2d view autocad software file that includes room dimension details with door window block double bed other furniture blocks details and various other details of the room like sanitary toilet and bathroom blocks also shown in drawings.
File Type:
DWG
File Size:
285 KB
Category::
Interior Design
Sub Category::
Bathroom Interior Design
type:
Gold
Uploaded by:
Eiz
Luna

