Drawings of bedroom 2d view plan and elevation autocad software file
Description
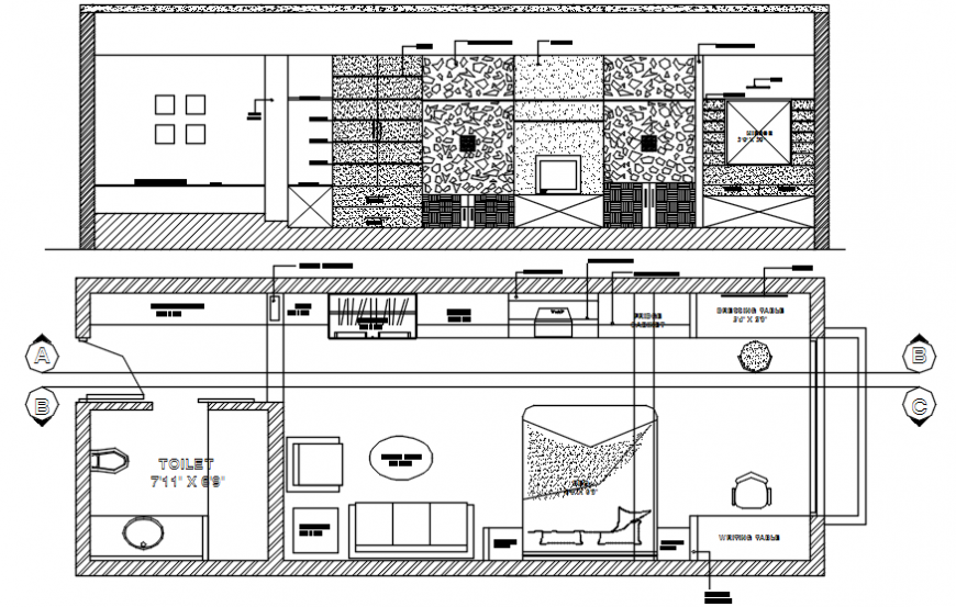
Drawings of bedroom 2d view plan and elevation autocad software file that shows bedroom plan details along with furiture layout details of double bed table and chair and room dimension wall flooring details. Door window blcoks details and toilet area details with front elevation of bedroom area.
File Type:
DWG
File Size:
223 KB
Category::
Interior Design
Sub Category::
Bathroom Interior Design
type:
Gold
Uploaded by:
Eiz
Luna

