Processing plant layout plan and electrical installation drawing details dwg file
Description
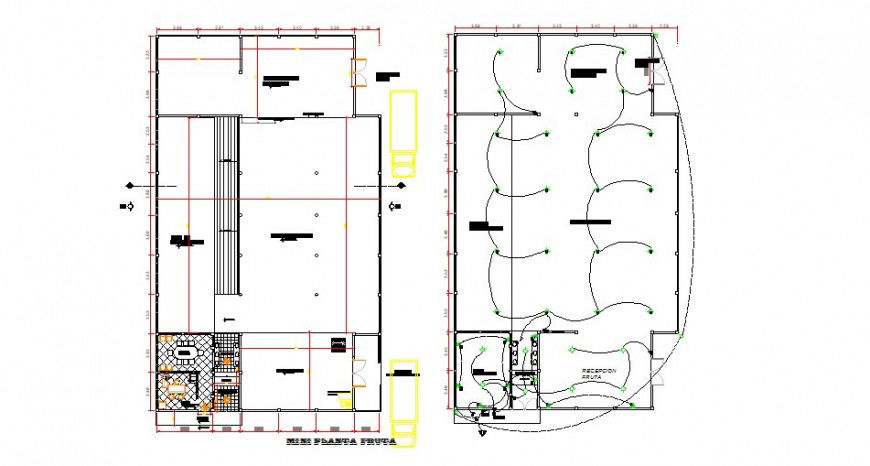
Processing plant layout plan and electrical installation drawing details that includes a detailed view of wide roads and tree and plants with block numbers with main entry gate and security check area, garden area and loading area details and parking area provide. Machinery details with administration office details with mess area details with computation and schedule of loads with general notes and specifications, panel board details, riser diagram and much more of plant details.
Uploaded by:
Eiz
Luna

