Water park and road unit detailing
Description
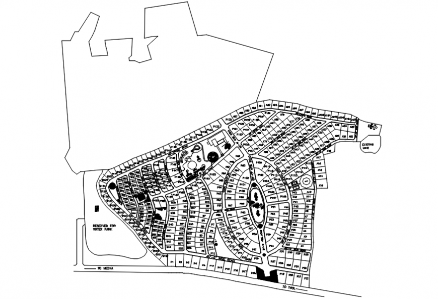
Water park and road unit detailing . Road map detail plan. here there is road map top view plan detailing file with all detailing and text in auto cad forma
Uploaded by:
Eiz
Luna
Water park and road unit detailing . Road map detail plan. here there is road map top view plan detailing file with all detailing and text in auto cad forma
Uploaded by:
Luna