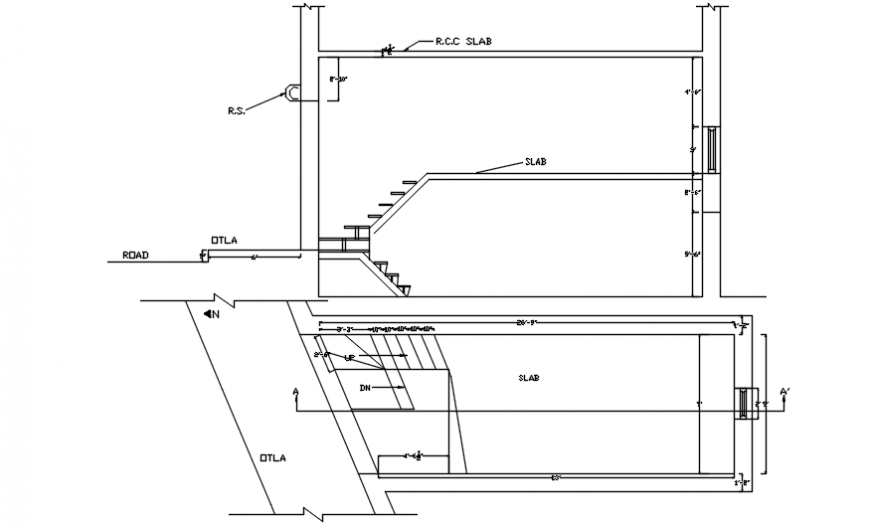
Staircase drawings details plan and section dwg file
Description
Staircase drawings details plan and section dwg file that includes staircase plan details along with dimension and section line details. Sectional details of staircase and riser tread details also included in drawings.
Uploaded by:
Eiz
Luna

