Drawing details of house 2d view layout autocad software file
Description
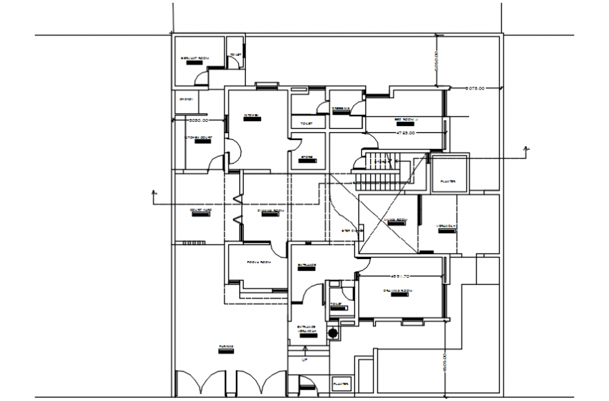
Drawing details of house 2d view layout autocad software file that shows house plan drawings details with furniture layout details and room dimension details. Parking space details and room details includes details of drawings room bedroom area kitchen and dining area sanitary tpilet and bathroom details also included in drawings.
Uploaded by:
Eiz
Luna

