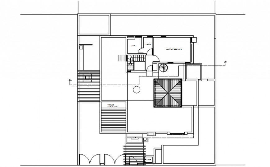
Drawings details of house 2d view layout plan autocad software file
Description
Drawings details of house 2d view layout plan autocad software file that shows house plan drawings details with furniture layout details and room dimension details. Parking space details and room details includes details of drawings room bedroom area kitchen and dining area sanitary tpilet and bathroom details also included in drawings.
Uploaded by:
Eiz
Luna

