2d view drawings of housing blocks elevation dwg autocad file
Description
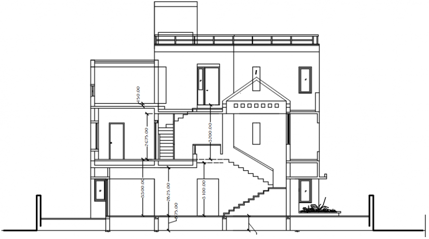
2d view drawings of housing blocks elevation dwg autocad file that shows side elevation detials along with dtaircase and leveling dimension detials with door window blocks details also shown in drawungs.
Uploaded by:
Eiz
Luna

