Elevation, section, plan and auto-cad drawing details of commercial store dwg file
Description
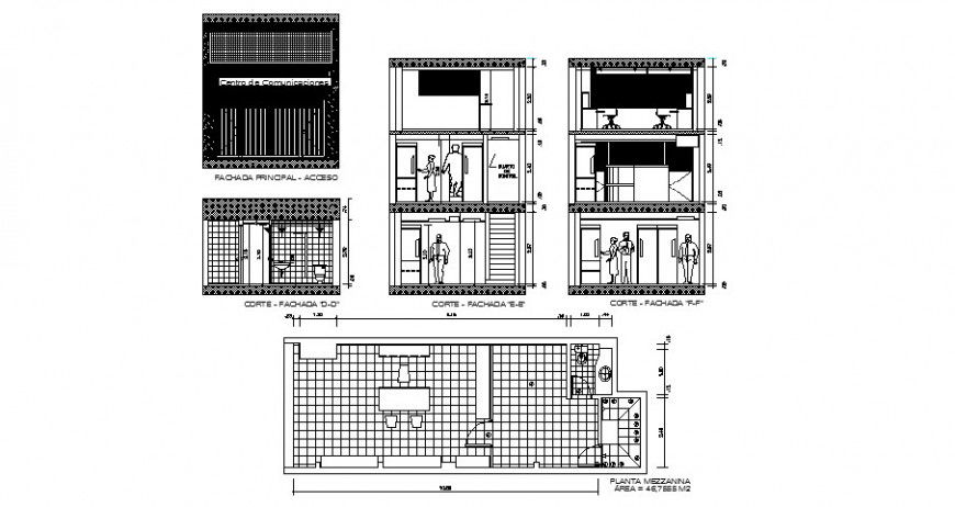
Elevation, section, plan and auto-cad drawing details of commercial store that includes indoor and outdoor doors and windows view and staircase elevation and sectional view details, balcony view with wall design, parking area, selling area, furniture and interior details and much more of store details.
File Type:
DWG
File Size:
667 KB
Category::
Interior Design
Sub Category::
Showroom & Shop Interior
type:
Gold
Uploaded by:
Eiz
Luna
