Lay shop store all sided section and floor plan cad drawing details dwg file
Description
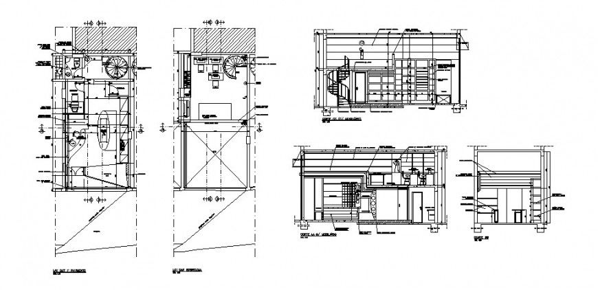
Lay shop store all sided section and floor plan cad drawing details that includes a detailed view of doors and windows details, staircase and interior drawing details, furniture details provides, display area and bill counter details, sanitary facilities and much more of shop details.
File Type:
DWG
File Size:
171 KB
Category::
Interior Design
Sub Category::
Showroom & Shop Interior
type:
Gold
Uploaded by:
Eiz
Luna

