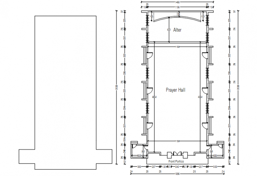
2d cad drawing of church Autocad software
Description
2D cad drawing of church Autocad software which includes a grund floor plan with a front portico with a wide prayer hall and alter area and spacious area for walk in with six doors. three doors on the left side and three on the right side. front portico with the main entrance for inside the church.
Uploaded by:
Eiz
Luna

