2d cad drawing of electrical layout AutoCAD software
Description
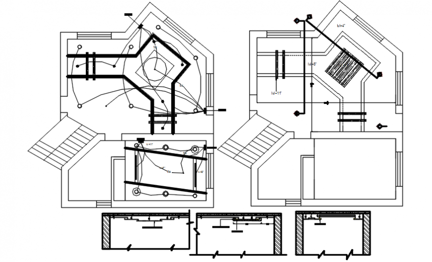
2d cad drawing of electrical layout AutoCAD software with drawings done detailing with switchboard, fan point, tube light, rope light, two-way connection been mentioned in the plan. false ceiling has been given in the plan. false ceiling material has been given with dimensions with wooden finished veneer material been used.
File Type:
DWG
File Size:
84 KB
Category::
Electrical
Sub Category::
Electrical Automation Systems
type:
Gold
Uploaded by:
Eiz
Luna

