Pharmacy store CAD drawing with elevation, section, and floor plan
Description
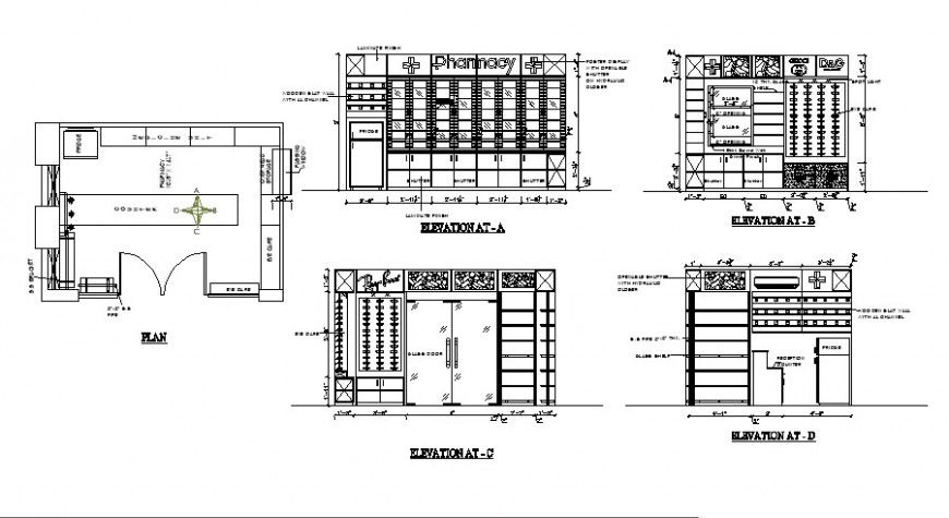
Pharmacy store elevation, section and plan cad drawing details that includes a detailed view of doors and windows details, staircase and interior drawing details, furniture details provides, display area and bill counter details, sanitary facilities and much more of shop details.
File Type:
DWG
File Size:
1.1 MB
Category::
Interior Design
Sub Category::
Showroom & Shop Interior
type:
Gold
Uploaded by:
Eiz
Luna

