House layout plan and electrical installation layout plan details dwg file
Description
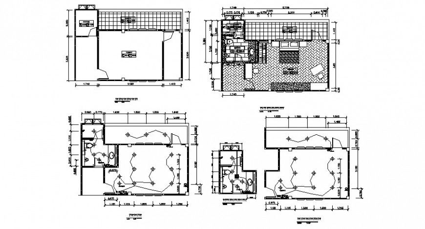
House layout plan and electrical installation layout plan details that includes a detailed view of main entry house door, drawing room and living room with family hall details kitchen and dining area, indoor staircases and laundry area and balcony, details and bedroom or master bedroom with power layout details and lighting layout details, computation and schedule of loads with general notes and specifications and much more of house details.
Uploaded by:
Eiz
Luna

