2d cad drawing display unit design Autocad software
Description
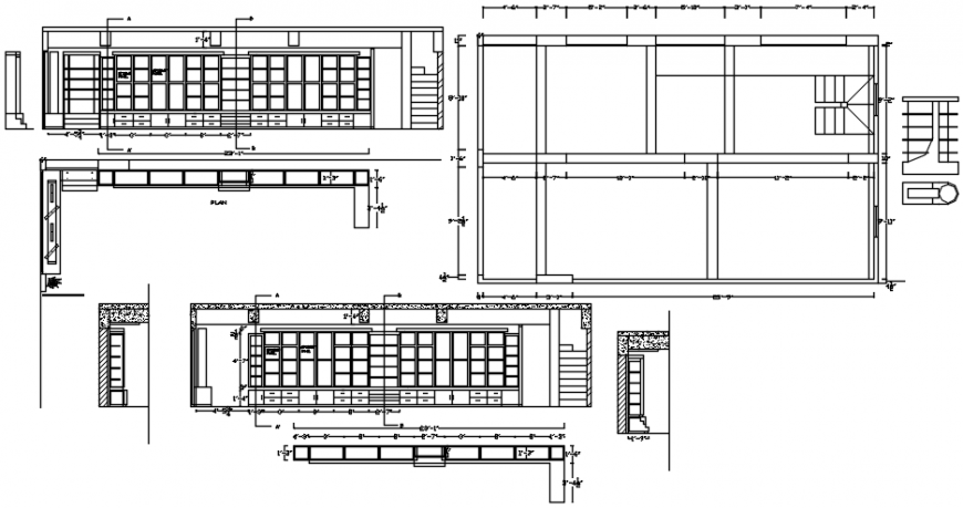
2d cad drawing display unit autocad software which includes storage unit with display units and doiwn cabinet with upper huge cabinets with designer mirror and easy access for the display units.
File Type:
DWG
File Size:
641 KB
Category::
Interior Design
Sub Category::
Showroom & Shop Interior
type:
Gold
Uploaded by:
Eiz
Luna

