2d cad drawing of tv lounge area material autocad software
Description
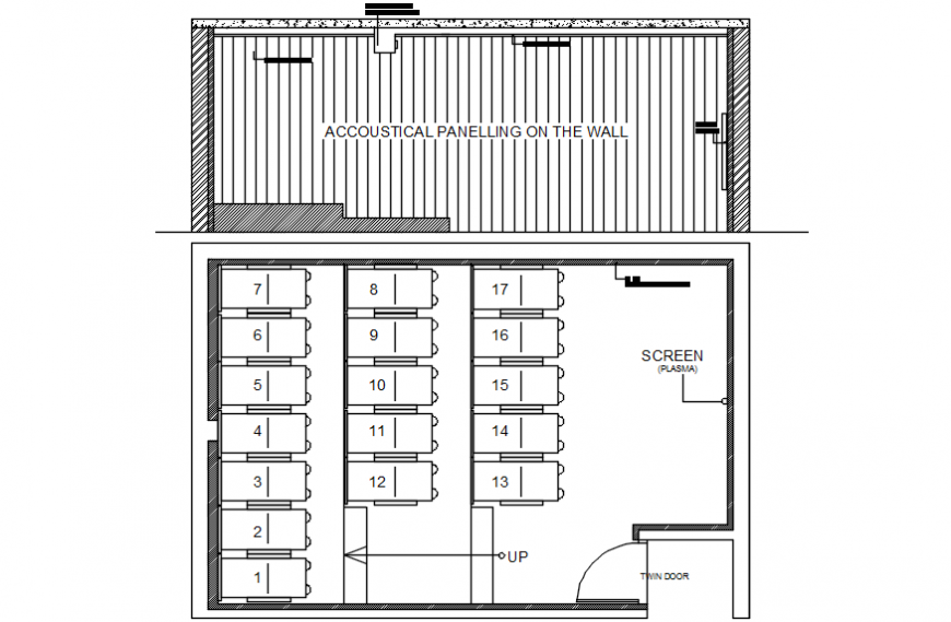
2d cad drawing of tv lounge area material autocad software with accoustical panelling on the wall and projector been fixed as per detail. screen plasma been attached. and home theatre with seventeen persoon capacity been provided with tywin door for enterance to home theatre.
Uploaded by:
Eiz
Luna

