School classroom foundation plan and several construction cad drawing details dwg file
Description
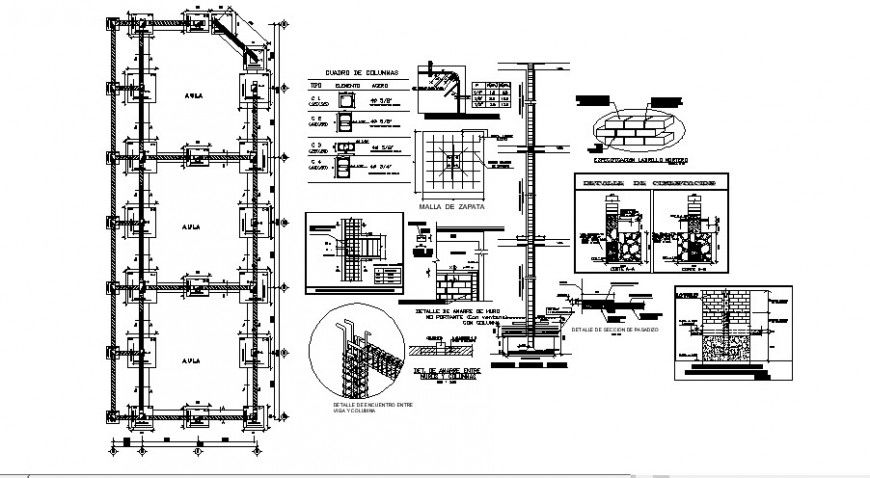
School classroom foundation plan and several construction cad drawing details that includes a detailed view of foundation plan, structure details and floor construction, beam construction and floor wise structure and constructive details with memory of materials and footings details, staircase construction and sectional details with steps details with dimensions, column view and beam construction with steel supports and much more of building construction details.
Uploaded by:
Eiz
Luna

