2d cad drawings of pattern restaurant outer area autocad software
Description
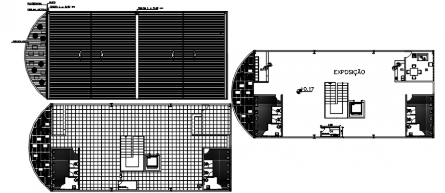
2d cad drawings of pattern restaurant outerarea autocad software been including the parking with controller area room and toilet area been provided with staircase. toilet area on both the sides. small sevice room witj staff cabin.
Uploaded by:
Eiz
Luna

