Drawings details of one bhk housing units 2d view floor plan dwg file
Description
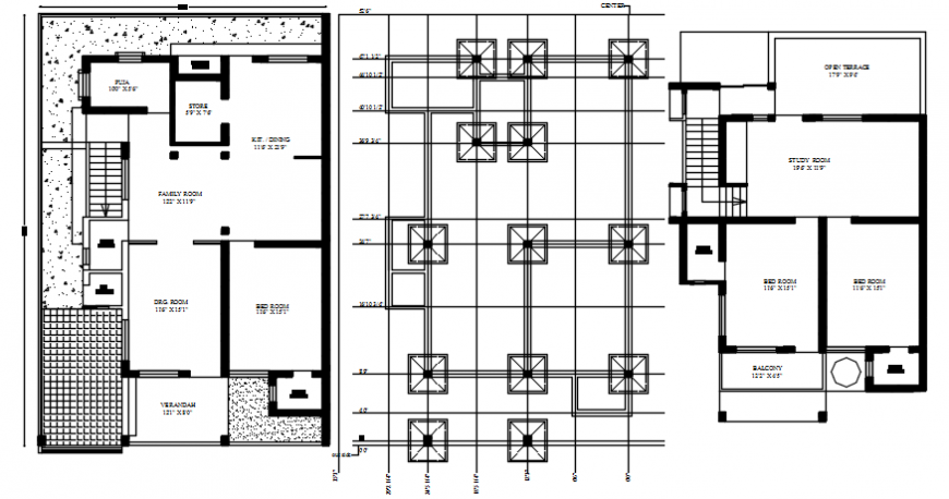
Drawings details of one bhk housing units 2d view floor plan dwg file that shows house floor plan drawings details with room details of drawings room bedroom kitchen and dining area along with room dimension details and staircase balcony area details also included in drawings.
Uploaded by:
Eiz
Luna

