Church building drawings details 2d view center line plan in autocad file
Description
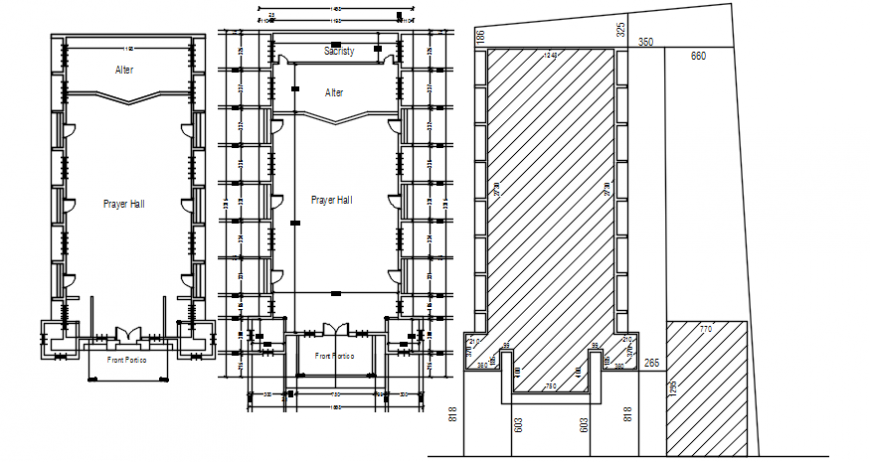
Church building drawings details 2d view center line plan in autocad file that includes work plan drawings details of building units with dimension details and door window blocks details. floor level details along with terrace plan details also included in drawings.
Uploaded by:
Eiz
Luna

