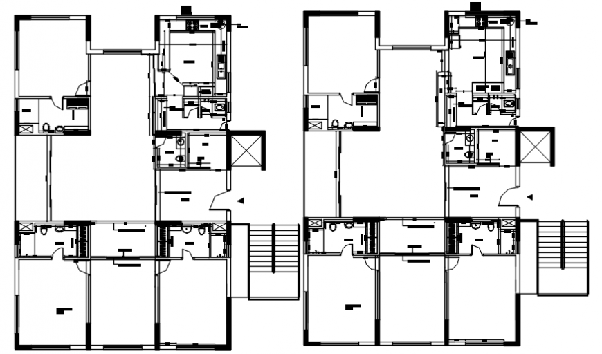
2d drawings details of a building blocks floor plan dwg file
Description
2d drawings details of a building blocks floor plan dwg file that includes work plan drawings of building along with room dimension details and door window block details. Floor level details with sanitary toilet bathroom and other detals of building also included in drawings.
Uploaded by:
Eiz
Luna

