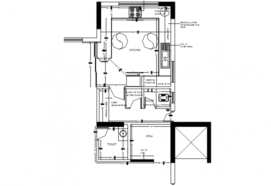
2d drawing of kitchen floor plan details in autocad file
Description
2d drawing of kitchen floor plan details in autocad file that shows kitchen plan details along with kitchen interior dimension details and kitchen automation furniture blocks details also included in drawings. Door window blocks details with pantry area details also included in drawings.
File Type:
DWG
File Size:
172 KB
Category::
Construction
Sub Category::
Kitchen And Remodeling Details
type:
Gold
Uploaded by:
Eiz
Luna
