2d cad drawing of penthouse autocad software
Description
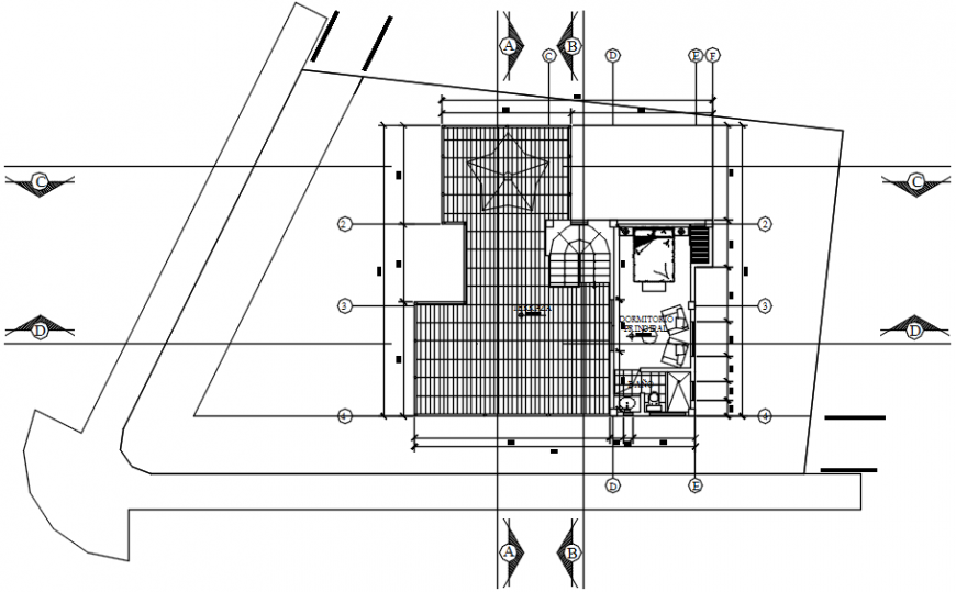
2d cad drawing of pent house autocad software for third level tht includes one spacious bedroom with two sofas and attached washroom area and open terrace area.
Uploaded by:
Eiz
Luna
2d cad drawing of pent house autocad software for third level tht includes one spacious bedroom with two sofas and attached washroom area and open terrace area.
Uploaded by:
Luna