2d cad drawing of apartment floor 4 autocad software
Description
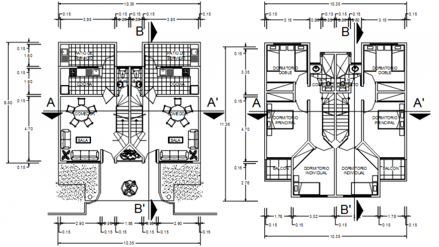
2d cad drawing of apartment floor 4 autocad software tht shows flats with three bedroom with one single bedroom , two beds bedroom and one small single bed room with one balcony and one common toilet area for two flats seprately.
Uploaded by:
Eiz
Luna

