2d cad drawings of exterior elevation upper roof autocad software
Description
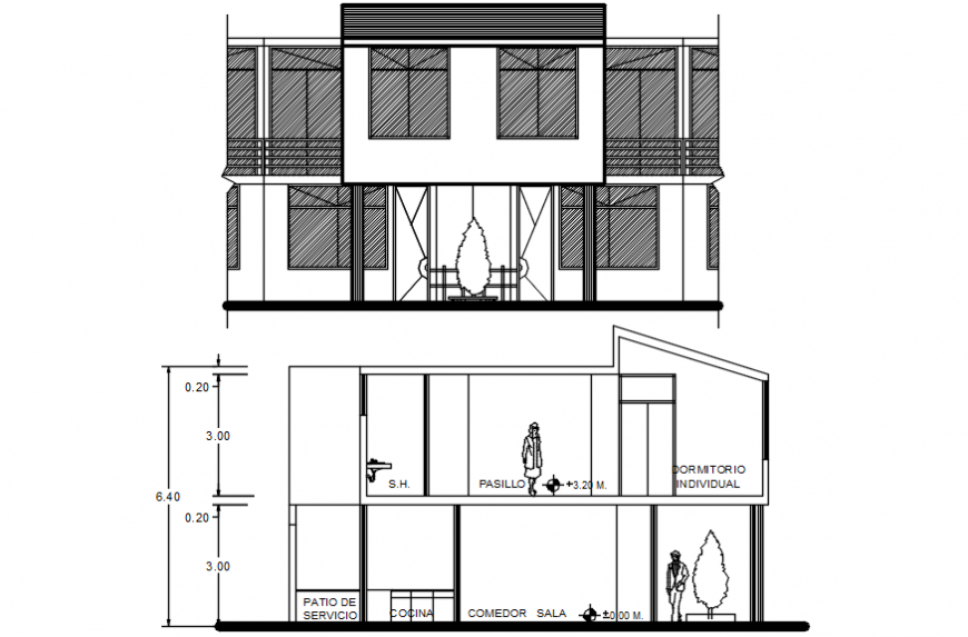
2d cad drawings of exterior elevation upper roof autocad softweare thta shows the blocks of buldings of upper roof with garden tree been seen in the plan with upper level of buldings.
Uploaded by:
Eiz
Luna

