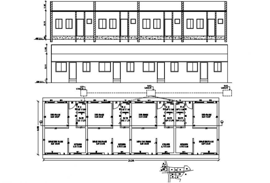
2d cad drawing of the plan and exterior plan autocad software
Description
2d cad drawing of plan and exterior plan autocad software detailed with front elevation and the front elevation with windoiws seen in the plan. drwaing plan with one bedroom and drawing room and one bedroom with kitchen including the key plan of plot.
Uploaded by:
Eiz
Luna

