2d cad drawing of first floor plan autocad software
Description
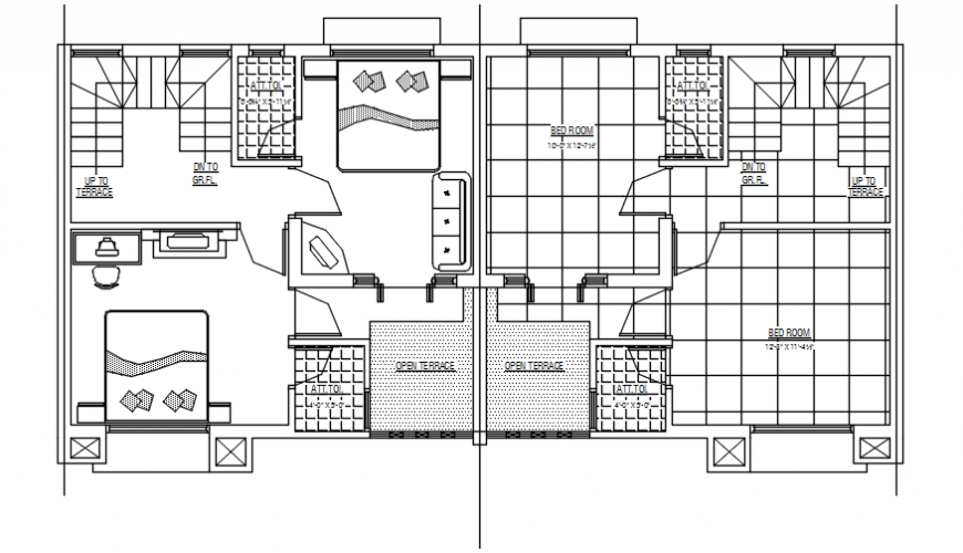
2d cad drawing of first floor plan autocad software with detailes with open terrace with two bedroom with attached toilet area seprately for both the rooms with study table and tv unit and one bedroom with sofa and table.
Uploaded by:
Eiz
Luna

